RA-1B Receiver

Bendix RA-1B Aircraft Receiver

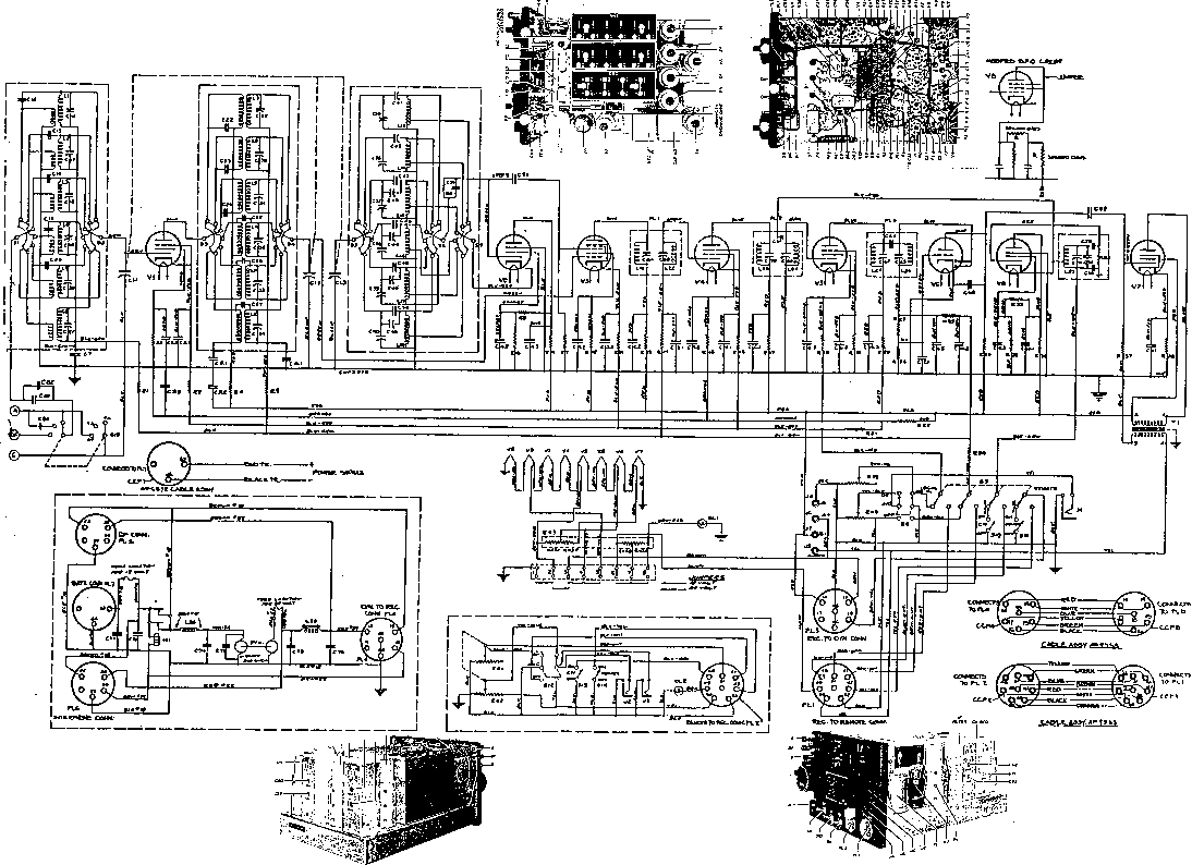
Click to view Circuit in a new window.

General Description

This communication receiver covers the range 4.15 - 1.5 megacycles and 1.8 - 15.0 megacycles. This is accomplished in 6 wave bands. There was provision for the set to be connected to a loop antenna for direction finding.

The set probably came into use in commercial service immediately prior to WW2 with U.S. airlines. In common with many commercial sets of this vintage, it was taken on by the military and produced in large quantities.

Sets such as this were used in many different types of aircraft. It is known that these sets were fitted to Catalinas (PBY's) in commercial service in Australia after the war.



Technical Data

The pictures show the internal top and bottom views of the receiver.

The set had several unusual design features, which made it very much in demand from disposal sources.

a) It did not have an inbuilt power supply - This meant that an external one could be quickly connected.

b) It used valves with 6.3v heaters. The heater strings (12/24v) could easily be modified for the standard 6.3v heater winding.

c) Unlike many other remote controllable aircraft receivers, this one could be controlled from the front panel without any mechanical hassles.

Specifications:

1. The receiver is an 8 tube superhet of conventional design.

2. The cw sensitivity is 2 microvolts, with not less than 5 microvolts on mcw.

3. The set has an IF frequency of 1630 kc/s. This results in a broad bandwidth with good apparent stability.

4. The output power of the set is rated at 500mw at 300 ohms ( 10%), although 1.5w maximum is possible.

5. The 3 position antenna selection switch provides inputs for fixed, trailing and direction finding antennas.

6. Normal power requirements were: filaments (12v - 1.5A, 24V - 0.8A). H.T. (ex dynamotor) 225 volts @ 70ma .



Illustrations of the set

RA-1B Top view Bottom view


Back to Top or Go to Home page.

© Ian O'Toole, 2009. Page created: 28/04/03 Last updated: 4/12/2009